Work
About
Contact
Blog
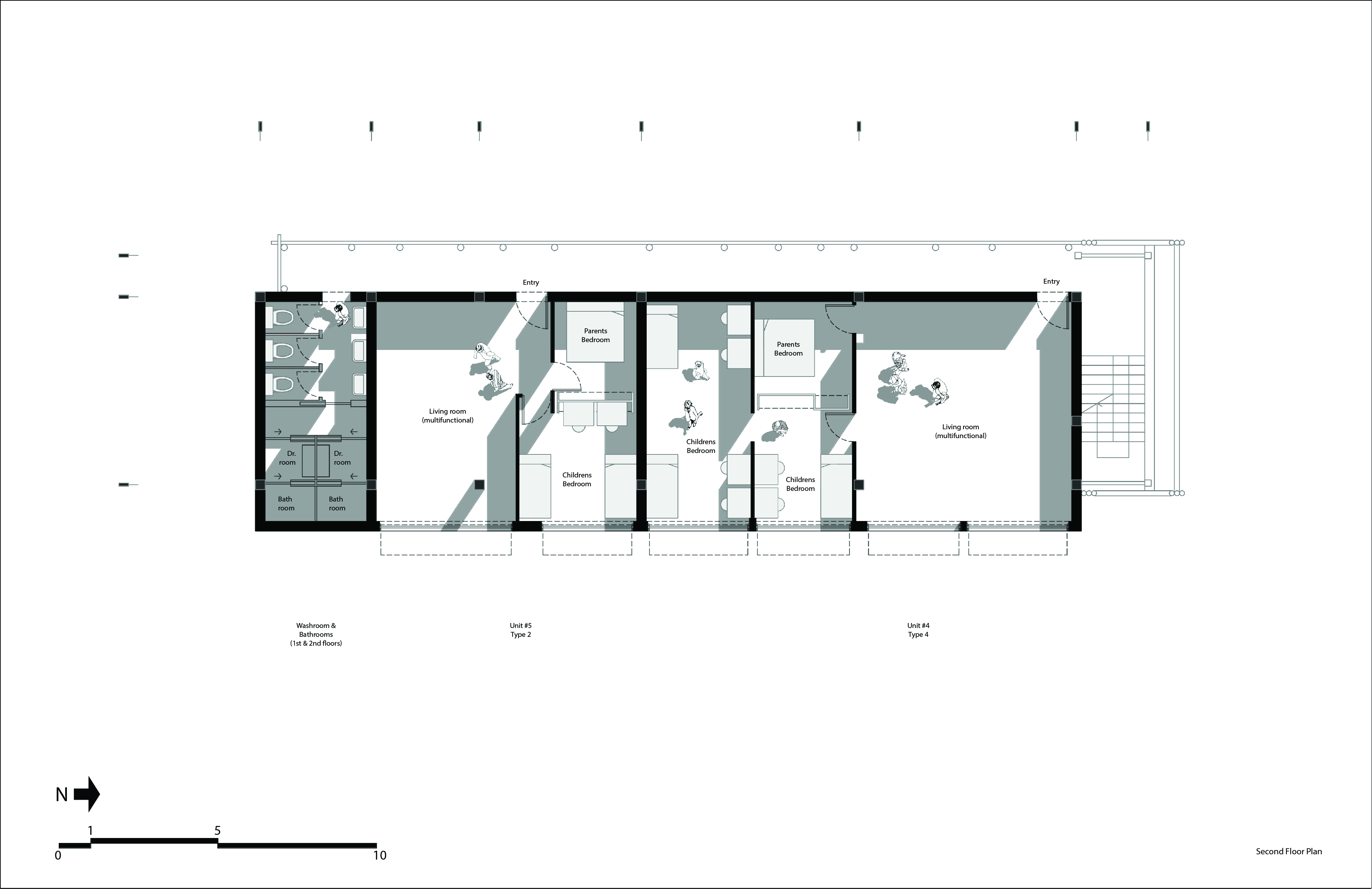
Social Housing for Displaced Farmers
Date
2013
Type
Studio Project
Location
Siloe, Colombia
Previous
Farhang Condominiums - Interior Design
Next
Urban Monument