Work
About
Contact
Blog
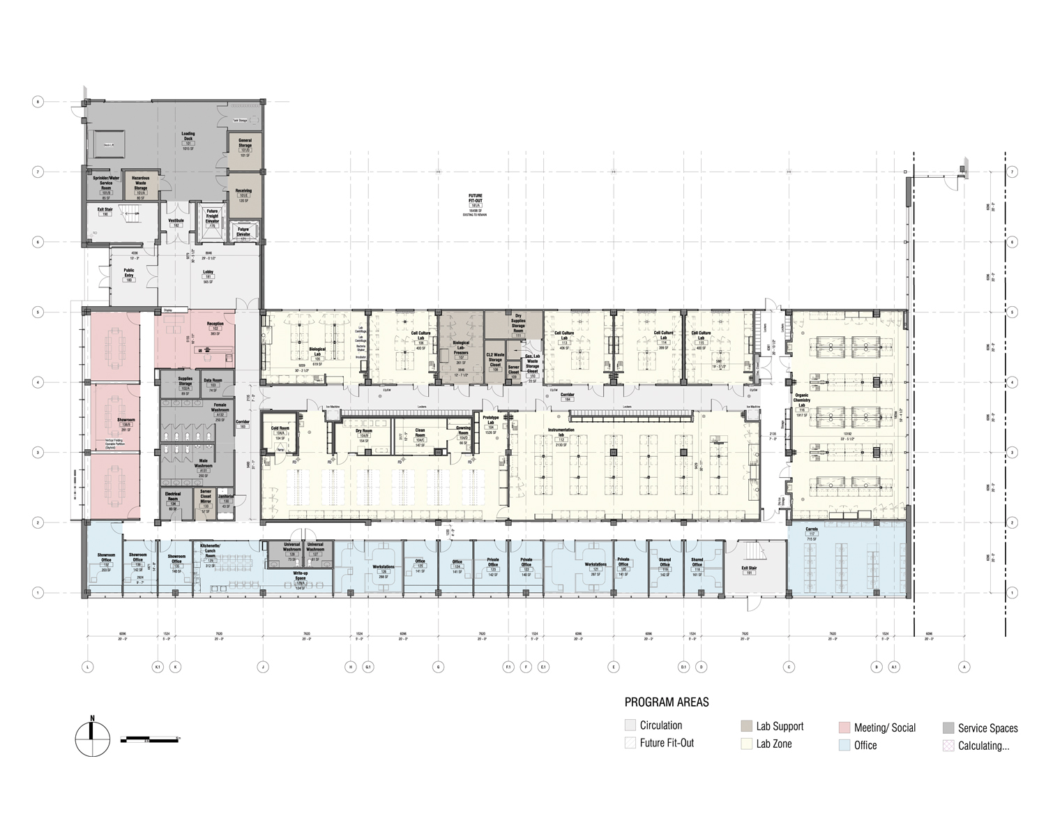
McMaster Centre for BEAM
Date
2016
With
DSAI
Location
Hamilton, ON
Previous
Dartmouth Sportplex
Next
House #2