Work
About
Contact
Blog
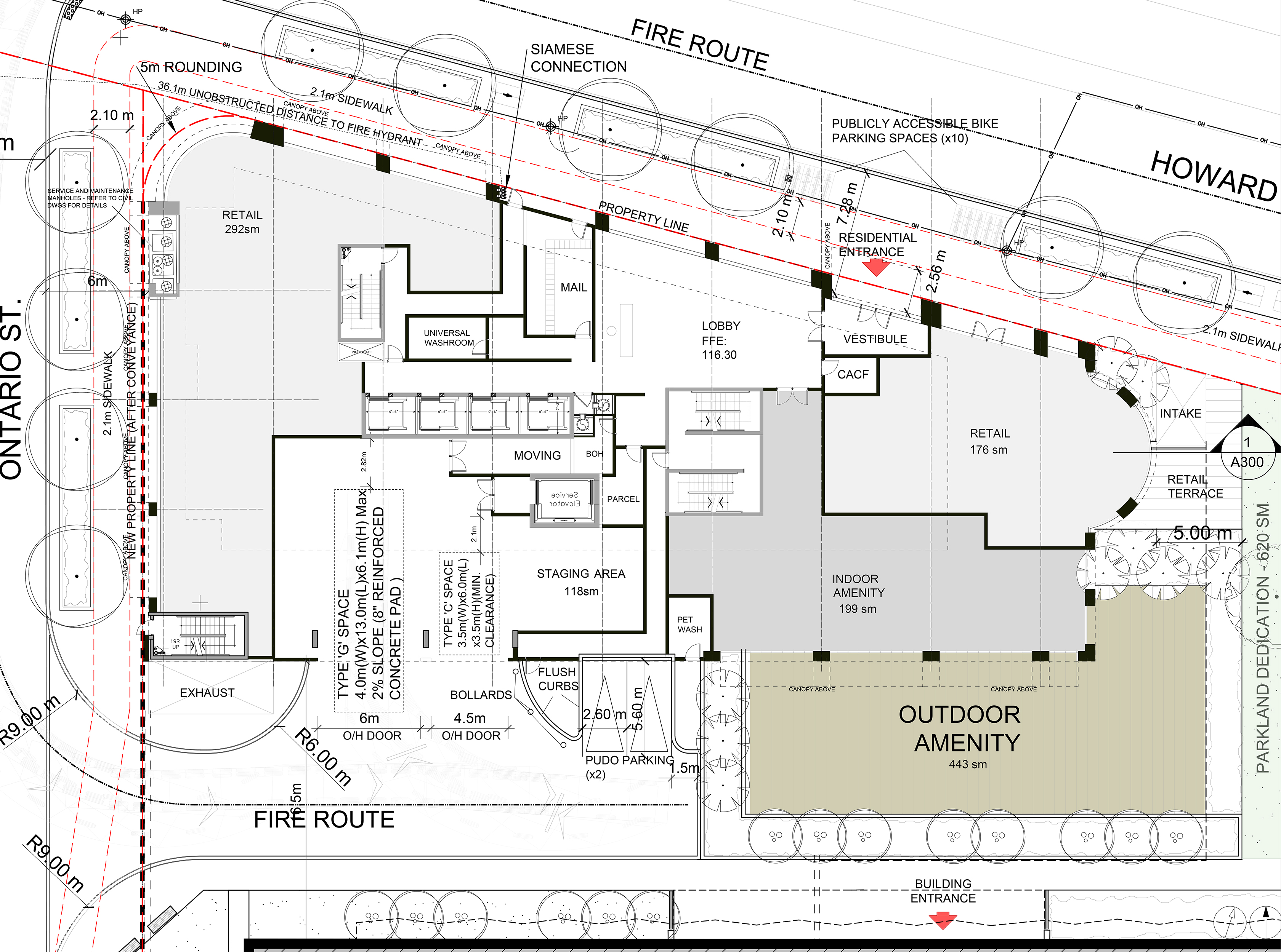
Downtown Mixed-use Residential Development
Date
2023
With
Arcadis (IBI Group)
Location
Toronto
Previous
Tom Patterson Theatre
Next
St Clair Mixed-use Residential Development